Заказать звонок
Каталог товаров
Доставка по всей России
+7 (495) 565-31-49
zakaz@lidertepla.ru

E-mail:

zakaz@lidertepla.ru

Режим работы:

Будние дни 09:00 - 18:00

Суббота 10:00 - 17:00

Воскресенье выходной

Каталог товаров

Котел отопительный Теплодар Куппер Эксперт-15 (2.0)

Артикул: ОК.65.000.00 / Код: 130473

Котел отопительный Теплодар Куппер Эксперт-15 (2.0)
«Куппер ЭКСПЕРТ 15» - универсальный отопительный котел длительного горения! В качестве топлива может использоваться уголь, дрова, топливные брикеты. В конструкции котла также предусмотрена возможность установки пеллетной или газовой горелок. Время горения на одной закладке угля - до 24 часов! Такие высокие показатели достигнуты, благодаря верхнему горению топлива в котле, развитому теплообменнику и трехзонной подаче воздуха. Загрузка топлива производится сверху, через удобную наклонную дверцу, а универсальный съемный лоток из нержавеющей стали защищает дверцу от перегрева и снижает риск случайного просыпания топлива.  Водонаполненное дно обеспечит дополнительный теплосъем и минимизирует нагрев поверхности под котлом. На верхней поверхности котла размещен штуцер для установки воздухоотводчика. Отопительный котел «Куппер ЭКСПЕРТ 15» может работать в одном из четырех режимах: 1. Режим «Быстрый прогрев» – за короткий промежуток времени - от 30 минут - и при минимальном объеме топлива достигается оптимальная температура. 2. Режим «Классик» – качественный прогрев помещения с возможностью регулировки интенсивности горения. Средняя продолжительность такого режима составляет 4 часа. 3. Режим «Медиум» – увеличенная продолжительность горения – до 6 часов (в зависимости от вида топлива). 4. Режим «Максимум» – полная загрузка топливного бункера. Продолжительность горения на одной закладке угля - до 24 часов! Конструкция котла предусматривает подключение к системе отопления с любой стороны. Предусмотрена также возможность установки регулятора тяги. Диаметр дымохода составляет 150 мм. Рабочее давление котла - до 3 атм! Для удобства обслуживания в конструкции котла предусмотрены два люка для прочистки. Верхний прочистной люк оборудован съемным защитным экраном из нержавеющей стали, который защитит люк от прогорания. В комплект поставки уже включены блок ТЭН, термоманометр, аксессуары для чистки котла и шибер. ВНИМАНИЕ! Элементы дымохода и терморегулятор не входят в комплект котла и приобретаются отдельно.
Мощность, кВт
15
Характеристики
Производитель Теплодар
Страна производства Россия
Модель ЭКСПЕРТ 2.0
Мощность, кВт 15
Отапливаемая площадь, м2 150
Камера сгорания открытая
Все характеристики
Рассчитать смету →

78 700 ₽

за 1 шт


Самовывоз

Доставка

по Москве: 1000 руб.
за МКАД: 1000 руб. + 60 руб. км
до ТК: 1000 руб.

Доставка в любой регион РФ осуществляется транспортной компанией

Купить комплектом

Комплект: 2 товара

4 250 ₽

4 250 ₽ ₽

- ₽
Характеристики
Производитель Теплодар
Страна производства Россия
Модель ЭКСПЕРТ 2.0
Мощность, кВт 15
Отапливаемая площадь, м2 150
Камера сгорания открытая
Количество контуров одноконтурный
Энергонезависимость котла энергонезависимый
Материал теплообменника сталь
Наличие насоса в котле без насоса
Габариты, см (шгв) 88.3х51.3х77.6
Способ установки напольный
Вес с упаковкой (брутто), кг 148
Вид топлива Уголь, Электричество, Газ, Пеллеты, Дрова
Напряжение, В 220/380
Размеры (ВхШхГ), мм 883x513x776

«Куппер ЭКСПЕРТ 15» - универсальный отопительный котел длительного горения!

В качестве топлива может использоваться уголь, дрова, топливные брикеты. В конструкции котла также предусмотрена возможность установки пеллетной или газовой горелок.

Время горения на одной закладке угля - до 24 часов! Такие высокие показатели достигнуты, благодаря верхнему горению топлива в котле, развитому теплообменнику и трехзонной подаче воздуха.

Загрузка топлива производится сверху, через удобную наклонную дверцу, а универсальный съемный лоток из нержавеющей стали защищает дверцу от перегрева и снижает риск случайного просыпания топлива. 

Водонаполненное дно обеспечит дополнительный теплосъем и минимизирует нагрев поверхности под котлом. На верхней поверхности котла размещен штуцер для установки воздухоотводчика.

Отопительный котел «Куппер ЭКСПЕРТ 15» может работать в одном из четырех режимах:

1. Режим «Быстрый прогрев» – за короткий промежуток времени - от 30 минут - и при минимальном объеме топлива достигается оптимальная температура.

2. Режим «Классик» – качественный прогрев помещения с возможностью регулировки интенсивности горения. Средняя продолжительность такого режима составляет 4 часа.

3. Режим «Медиум» – увеличенная продолжительность горения – до 6 часов (в зависимости от вида топлива).

4. Режим «Максимум» – полная загрузка топливного бункера. Продолжительность горения на одной закладке угля - до 24 часов!

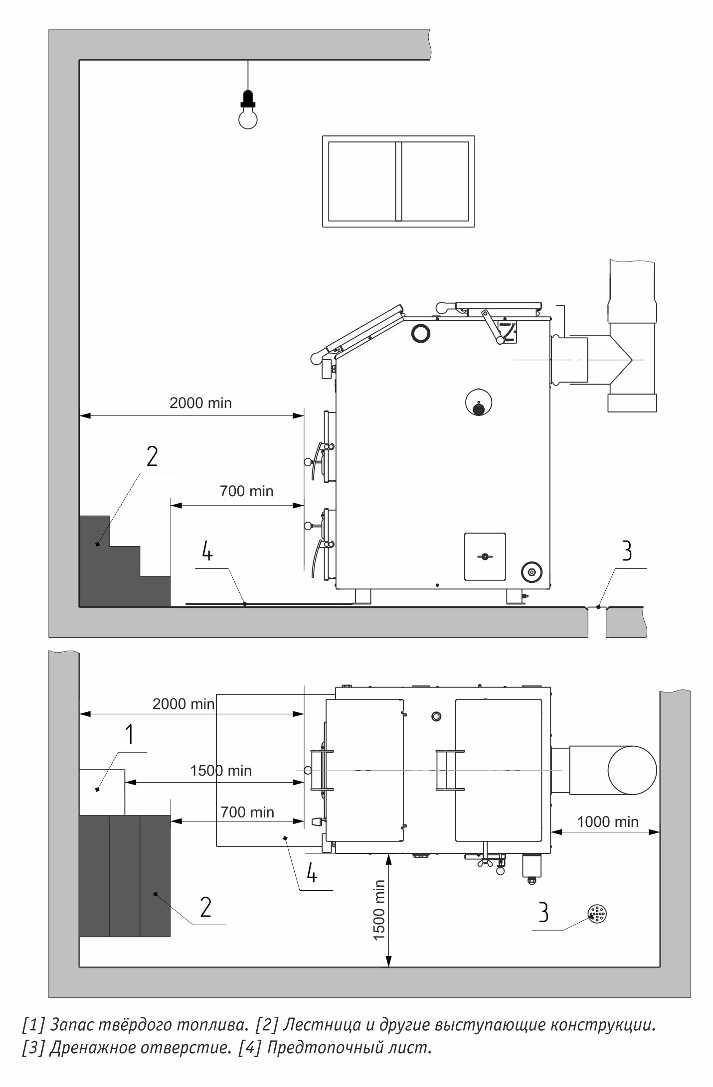
Конструкция котла предусматривает подключение к системе отопления с любой стороны. Предусмотрена также возможность установки регулятора тяги. Диаметр дымохода составляет 150 мм.

Рабочее давление котла - до 3 атм!

Для удобства обслуживания в конструкции котла предусмотрены два люка для прочистки. Верхний прочистной люк оборудован съемным защитным экраном из нержавеющей стали, который защитит люк от прогорания.

В комплект поставки уже включены блок ТЭН, термоманометр, аксессуары для чистки котла и шибер.

ВНИМАНИЕ! Элементы дымохода и терморегулятор не входят в комплект котла и приобретаются отдельно.

Уточнить наличие
Мы уточним наличие товара «Котел отопительный Теплодар Куппер Эксперт-15 (2.0)» и когда он появится в наличии свяжемся с Вами. В форме ниже заполните данные для обратьной связи.
Имя*
Телефон*
E-mail*
Количество товара*
Предложить свою цену
Котел отопительный Теплодар Куппер Эксперт-15 (2.0)
Котел отопительный Теплодар Куппер Эксперт-15 (2.0)
78 700 ₽
Своя цена*
Причина*
Имя*
Телефон*
Нажимая на кнопку «Отправить», вы даете согласие на обработку своих персональных данных и получение информационных сообщений по СМС или Viber.
Вы недавно смотрели
Сетчатый фильтр Goetze FM07-1/2C холодной воды (GTZFIN001)
Сетчатый фильтр Goetze FM07-1/2C холодной воды (GTZFIN001)

Goetze (Германия)

5 700 ₽ | шт.

Stout Штуцер НР 1 1/4X35 (арт. SFT-0035-011435)
Stout Штуцер НР 1 1/4X35 (арт. SFT-0035-011435)

STOUT (Италия)

1 035 ₽ | шт.

Биметаллический радиатор Rifar Monolit 500, 4 секции Антрацит, боковое подключение
Биметаллический радиатор Rifar Monolit 500, 4 секции Антрацит, боковое подключение

RIFAR (Россия)

скидка 7% при заказе от 4х радиаторов + ПОДАРОК!

7 280 ₽ | шт.

Угольник Rehau PX  90°, 16 (11600211001)
Угольник Rehau PX 90°, 16 (11600211001)

РЕХАУ (Германия)

516 ₽ | шт.

Смеситель для раковины Lemark Status (LM4406C)
Смеситель для раковины Lemark Status (LM4406C)

Lemark (Чехия)

9 874 ₽ | шт.

Кронштейн РЕХАУ тип O 75 / 150 (11055293008)
Кронштейн РЕХАУ тип O 75 / 150 (11055293008)

РЕХАУ (Германия)

531 ₽ | шт.

Контргайка Valtec Гост 1" (VTr.656.N.0006)
Контргайка Valtec Гост 1" (VTr.656.N.0006)

Valtec (Италия)

178 ₽ | шт.

Электрический котел Рэко 5П (46012500005)
Электрический котел Рэко 5П (46012500005)

Рэко (Россия)

34 200 ₽ | шт.


Есть вопросы?

Звоните!

+7 (495) 565-31-49

Пишите!

zakaz@lidertepla.ru

Режим работы:

  • Будние дни 09:00 — 18:00
  • Суббота 10:00 — 17:00
  • Воскресенье выходной
Есть вопросы? Звоните! +7 (495) 565-31-49
Или пишите: zakaz@lidertepla.ru
Заказать звонок
Телефон
Имя
Удобное время для звонка

Ваш комментарий
Заказ в 1 клик
Телефон
Имя
Спасибо за заявку!
В ближайшее время с вами свяжется наш менеджер.